Цвет секционных ворот


Другие варианты стандартного цвета секционных ворот в той же стоимости












Нестандартные цвета секционных ворот(с наценкой)


Цвета секционных ворот "Имитация дерева" (с наценкой)



Стандартные цвета гладкой панели секционных ворот(с наценкой)



Нестандартные цвета гладкой панели секционных ворот (с наценкой)


Дизайн панелей полотна секционных ворот








Стандартная комплектация секционных ворот






Дополнительная комплектация













- Система уравновешивания полотна ворот – пружинно-торсионный механизм (устройство защиты от разрыва пружины является опцией)
- Концевой П-образный опорный кронштейн
- Верхний профиль
- Горизонтальная направляющая
- Боковая крышка
- Угловая стойка
- Вертикальная направляющая
- Торсионная пружина
- Опора с роликодержателем и роликом
- Верхний уплотнитель
- Петля
- Полотно ворот из сэндвич-панелей
- Нижний угловой кронштейн
- Нижний уплотнитель
- Ручка
- Верхняя опора с роликодержателем и роликом
Таблица размеров секционных ворот RSD02
| Наименование | Значение |
|---|---|
| Высота проема, мм | от 2 000 до 3 500 |
| Ширина проема, мм | от 1 100 до 6 000 |
| Притолока, мм | от 150 |
| Пристенки, мм | от 120 |
Замер объекта
Профессиональный замер
При замере проёма монтажником, осуществляющим последующий монтаж ворот, оценивается необходимость дополнительных работ, которая зависит от материала стен и потолка, других особенностей проёма и составляется индивидуальная сметная стоимость монтажа секционных ворот.
Стоимость замера проёма вычитается из общей стоимости монтажа.
Самостоятельный замер

1. Для замера ширины, высоты проёма, притолоки, боковых пространств и глубины нужна рулетка вместе со строительным уровнем.
2. Все измерения выполняются внутри помещения.
3. Каждое измерение выполняется по трём линиям.
4. Измеряем высоту проёма H — от чистого пола до верхней точки проёма. Записываем наибольшее значение.
5. Измеряем ширину проёма B — справа налево по внутренней части. Записываем наибольшее значение.
6. Измеряем притолоку h — расстояние от верхней точки проёма до препятствия. Записываем наименьшее значение. Минимум 150 мм.
7. Измеряем боковые расстояния b1 / b2 — слева и справа до ближайшей преграды. Записываем наименьшее значение. Минимум 120 мм с каждого края.
8. Измеряем глубину помещения L, фиксируем наименьшее значение.
9. Перепад по высоте пола должен быть не более 10 мм по всей ширине ворот.
10. Монтажную плоскость притолоки и стен проверяем строительным уровнем.
11. Направляющие крепятся только на монолитное и прочное основание.
12. Если основание непрочное, проём нужно окантовать уголком или изготовить металлический проём из профильной трубы.
Установка накладным монтажом секционных ворот RSD02


Профессиональный монтаж
Стоимость полного цикла установки ворот зависит от проема.
Работы разделяются на следующие этапы:
1. Доставка до объекта
2. Подготовка(изготовление) проема, при необходимости, если нельзя установить в существующий проем.
3. Установка секционных ворот на существующий проем.
4. Монтаж автоматики
Так, например можно подготовку проёма для монтажа сделать самостоятельно или она будет не нужна. Тогда стоимость монтажа секционных ворот будет ниже.
Стоимость монтажа зависит от размера ворот, материала стен и потолка, наличия автоматики открывания ворот, удалённости от г. Екатеринбург, от других особенностей проёма.
Для самостоятельной установки
Для улучшения дизайна и технических характеристик




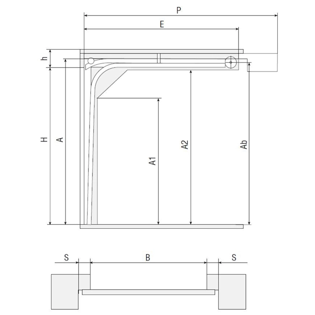
Типы подъема секционных ворот RSD 02
Низкий тип подъема, барабан спереди

h - высота притолоки ≥ 230 мм(≥ 260 мм под привод))
| Усл. обозначение, наименование параметра | Расчетная формула |
|---|---|
| H, мм Высота проема | H |
| h, мм Высота притолоки | ≥ 230 (≥ 260 мм под привод) |
| B, мм Ширина проема | B |
| A, мм Высота угловой стойки | H + 110 |
| Ab, мм Высота оси вала и барабана | ≥ A + 59 |
| A1, мм Высота вертикальной направляющей | А - 543 |
| A2, мм Высота горизонтальной направляющей | А - 106 |
| E, мм Длина горизонтальных направляющих | Н + 300 |
| Db, мм Рабочая зона торсионного механизма | зависит от размеров проема и веса щита |
| S, мм Минимальное боковое пространство | 120 |
| P, мм Зона расположения потолочного привода | Н + 1 185 |
| n, мм Перекрытие проема в открытом положении | до 190 — без потолочного привода, ширина проема до 4 500; до 235 — без потолочного привода, ширина проема более 4 500; до 10 — с потолочным приводом, ширина проема до 4 500; до 70 — с потолочным приводом, ширина проема свыше 4 500 |
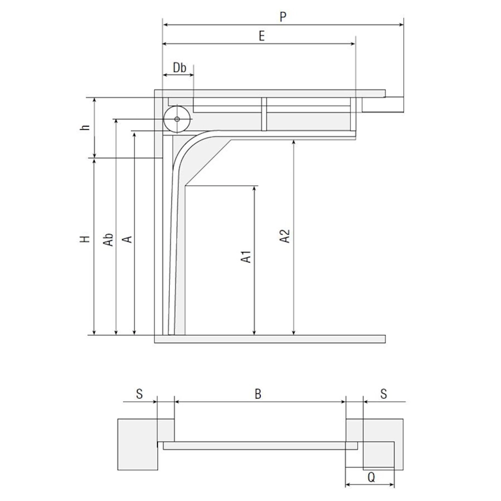
Низкий тип подъема, барабан спереди (комплект стандартных направляющих RKTN)

h - Высота притолоки ≥ 160 мм
| Усл. обозначение, наименование параметра | Расчетная формула |
|---|---|
| H, мм Высота проема | H |
| h, мм Высота притолоки | ≥ 160 |
| B, мм Ширина проема | B |
| A, мм Высота угловой стойки | H + 54 |
| Ab, мм Высота оси вала и барабана | ≥ A + 59 |
| A1, мм Высота вертикальной направляющей | А - 552 |
| A2, мм Высота горизонтальной направляющей | А - 115 |
| E, мм Длина горизонтальных направляющих | Н + 440 |
| Db, мм Рабочая зона торсионного механизма | зависит от размеров проема и веса щита |
| S, мм Минимальное боковое пространство | 120 |
| P, мм Зона расположения потолочного привода | Н + 1 185 |
| n, мм Перекрытие проема в открытом положении | до 245 — без потолочного привода, ширина проема до 4 500; до 300 — без потолочного привода, ширина проема более 4 500; до 60 — с потолочным приводом, ширина проема до 4 500; до 125 — с потолочным приводом, ширина проема свыше 4 500 |
Низкий тип подъема, барабан сзади

h-Высота притолоки ≥ 150 мм;
h-Высота притолоки с потолочным приводом ≥ 160 мм
| Усл. обозначение, наименование параметра | Расчетная формула |
|---|---|
| H, мм Высота проема | H |
| h, мм Высота притолоки | ≥ 150; ( ≥ 160 с потолочным приводом) |
| B, мм Ширина проема | B |
| A, мм Высота угловой стойки | при h 170: H + 110; при 150 ≤ h ≤ 170: H + h - 60 |
| Ab, мм Высота оси вала и барабана | при h ≤ 170: H + 55; при 150 ≤ h ≤ 170: H + h - 47 |
| A1, мм Высота вертикальной направляющей | А - 543 |
| A2, мм Высота горизонтальной направляющей | А - 106 |
| E, мм Длина горизонтальных направляющих | Н + 510 |
| Db, мм Рабочая зона торсионного механизма | зависит от размеров проема и веса щита |
| S, мм Минимальное боковое пространство | 120 |
| P, мм Зона расположения потолочного привода | Н + 1 185 |
| n, мм Перекрытие проема в открытом положении | 240 (без привода); 40...60 (с потолочным приводом) |
Стандартный подъем

При H(высоте проема) ≤ 3000 мм - h(высота притолоки) ≥ 350 мм
При H(высоте проема) более 3000 мм - h(высота притолоки) ≥ 420 мм
| Усл. обозначение, наименование параметра | Расчетная формула |
|---|---|
| H, мм Высота проема | H |
| h, мм Высота притолоки | R381: ≥ 420; R305: ≥ 350 |
| B, мм Ширина проема | B |
| A, мм Высота угловой стойки | R381: H + 235; R305: H + 165 |
| Ab, мм Высота оси вала и барабана | A + 97 |
| A1, мм Высота вертикальной направляющей | R381: A — 580; R305: A — 490 |
| A2, мм Высота горизонтальной направляющей | А - 110 |
| E, мм Длина горизонтальных направляющих | R381: H + 200; R305: H + 250 |
| Db, мм Рабочая зона торсионного механизма | зависит от размеров проема и веса щита |
| S, мм Минимальное боковое пространство | 120 |
| P, мм Зона расположения потолочного привода | Н + 1 060 |
| n, мм Перекрытие проема в открытом положении | 300 |
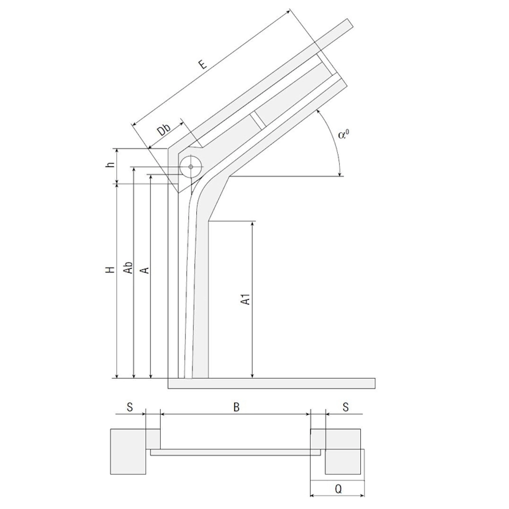
Стандартный наклонный подъем

h (высота притолоки) ≥ 500 мм
| Усл. обозначение, наименование параметра | Расчетная формула |
|---|---|
| H, мм Высота проема | H |
| h, мм Высота притолоки | больше 500 |
| B, мм Ширина проема | B |
| A, мм Высота угловой стойки | H + 250…985 |
| Ab, мм Высота оси вала и барабана | А + 86/97 |
| A1, мм Высота вертикальной направляющей | Н - 300 |
| E, мм Длина горизонтальных направляющих | зависит от угла α° |
| Db, мм Рабочая зона торсионного механизма | зависит от размеров проема и веса щита |
| S, мм Минимальное боковое пространство | 120 |
| α° Угол наклона направляющих к горизонтали | 5...65 (кратен 5°) |
| Q, мм Зона расположения привода на вал | 300 |
Высокий подъем

h (высота притолоки) ≥ 660 мм
| Усл. обозначение, наименование параметра | Расчетная формула |
|---|---|
| H, мм Высота проема | H |
| h, мм Высота притолоки | ≥ 660 |
| B, мм Ширина проема | B |
| HL, мм Расстояние от уровня горизонтальных направляющих до проема | по умолчанию h - 330 |
| A, мм Высота угловой стойки | H + HL |
| Ab, мм Высота оси вала и барабана | A + 86/97 |
| A1, мм Высота вертикальной направляющей | А - 580 |
| A2, мм Высота горизонтальной направляющей | А - 53 |
| E, мм Длина горизонтальных направляющих | H - НL + 470...600 |
| Db, мм Рабочая зона торсионного механизма | зависит от размеров проема и веса щита |
| S, мм Минимальное боковое пространство | 120 |
| Q, мм Зона расположения привода на вал | 300 |
Высокий наклонный подъем

h (высота притолоки) ≥ 660 мм
| Усл. обозначение, наименование параметра | Расчетная формула |
|---|---|
| H, мм Высота проема | H |
| h, мм Высота притолоки | ≥ 660 |
| B, мм Ширина проема | B |
| HL, мм Расстояние от уровня горизонтальных направляющих до проема | 330 |
| A, мм Высота угловой стойки | H + HL + 15...749 |
| Ab, мм Высота оси вала и барабана | ≤ А + 86/97 |
| A1, мм Высота вертикальной направляющей | Н + HL - 330...580 |
| E, мм Длина горизонтальных направляющих | зависит от угла α° |
| Db, мм Рабочая зона торсионного механизма | зависит от размеров проема и веса щита |
| S, мм Минимальное боковое пространство | 120 |
| α° Угол наклона направляющих к горизонтали | 5...65 (кратен 5°) |
| Q, мм Зона расположения привода на вал | 300 |
Вертикальный подъем

h (высота притолоки) ≥ Н(высота проема) + 500 мм
| Усл. обозначение, наименование параметра | Расчетная формула |
|---|---|
| H, мм Высота проема | H |
| h, мм Высота притолоки | Н + 500 |
| B, мм Ширина проема | B |
| A, мм Высота угловой стойки | 2H + 120 |
| Ab, мм Высота оси вала и барабана | A + 166 |
| S, мм Минимальное боковое пространство | 120 |
| Q, мм Зона расположения привода на вал | 300 |
Дизайн панелей полотна секционных ворот








Калитка в полотне ворот RSD02


Варианты изготовления калиток


Стандартная комплектация секционных ворот


Выбор дизайна окон










