Цвет секционных ворот


Другой вариант стандартного цвета секционных ворот в той же стоимости


Дизайн панелей полотна секционных ворот




Стандартная комплектация секционных ворот




Дополнительная комплектация









- Система уравновешивания полотна ворот (пружинно-торсионный механизм)
- Концевой П-образный опорный кронштейн
- Направляющие для полотна ворот
- Опора с роликодержателем и роликом
- Вертикальная стойка
- Боковая крышка
- Кронштейн крепления направляющей
- Кронштейн крепления изгибов
- Система крепления к потолку
- Верхний опорный кронштейн
- Усилитель однослойной панели
- Однослойные панели
- Нижний угловой кронштейн
- Нижний профиль и уплотнитель
- Ручка
- Внутренняя петля
Таблица размеров секционных ворот RSD02 SLP
| Наименование | Значение |
|---|---|
| Высота проема, мм | от 1 800 до 3 000 |
| Ширина проема, мм | от 2 000 до 3 500 |
| Притолока, мм | от 210 для низкого подъема |
| Притолока, мм | от 320 для стандартного подъема |
| Пристенки, мм | от 120 |
Замер объекта
Профессиональный замер
При замере проёма монтажником, осуществляющим последующий монтаж ворот, оценивается необходимость дополнительных работ, которая зависит от материала стен и потолка, других особенностей проёма и составляется индивидуальная сметная стоимость монтажа секционных ворот.
Стоимость замера проёма вычитается из общей стоимости монтажа.
Самостоятельный замер

1. Для замера ширины, высоты проёма, притолоки, боковых пространств и глубины нужна рулетка вместе со строительным уровнем.
2. Все измерения выполняются внутри помещения.
3. Каждое измерение выполняется по трём линиям.
4. Измеряем высоту проёма H — от чистого пола до верхней точки проёма. Записываем наибольшее значение.
5. Измеряем ширину проёма B — справа налево по внутренней части. Записываем наибольшее значение.
6. Измеряем притолоку h — расстояние от верхней точки проёма до препятствия. Записываем наименьшее значение. Минимум 210 мм.
7. Измеряем боковые расстояния b1 / b2 — слева и справа до ближайшей преграды. Записываем наименьшее значение. Минимум 120 мм с каждого края.
8. Измеряем глубину помещения L, фиксируем наименьшее значение.
9. Перепад по высоте пола должен быть не более 10 мм по всей ширине ворот.
10. Монтажную плоскость притолоки и стен проверяем строительным уровнем.
11. Направляющие крепятся только на монолитное и прочное основание.
12. Если основание непрочное, проём нужно окантовать уголком или изготовить металлический проём из профильной трубы.
Установка накладным монтажом секционных ворот RSD02


Профессиональный монтаж
Стоимость полного цикла установки ворот зависит от проема.
Работы разделяются на следующие этапы:
1. Доставка до объекта
2. Подготовка(изготовление) проема, при необходимости, если нельзя установить в существующий проем.
3. Установка секционных ворот на существующий проем.
4. Монтаж автоматики
Так, например можно подготовку проёма для монтажа сделать самостоятельно или она будет не нужна. Тогда стоимость монтажа секционных ворот будет ниже.
Стоимость монтажа зависит от размера ворот, материала стен и потолка, наличия автоматики открывания ворот, удалённости от г. Екатеринбург, от других особенностей проёма.
Для самостоятельной установки
Для улучшения дизайна и технических характеристик



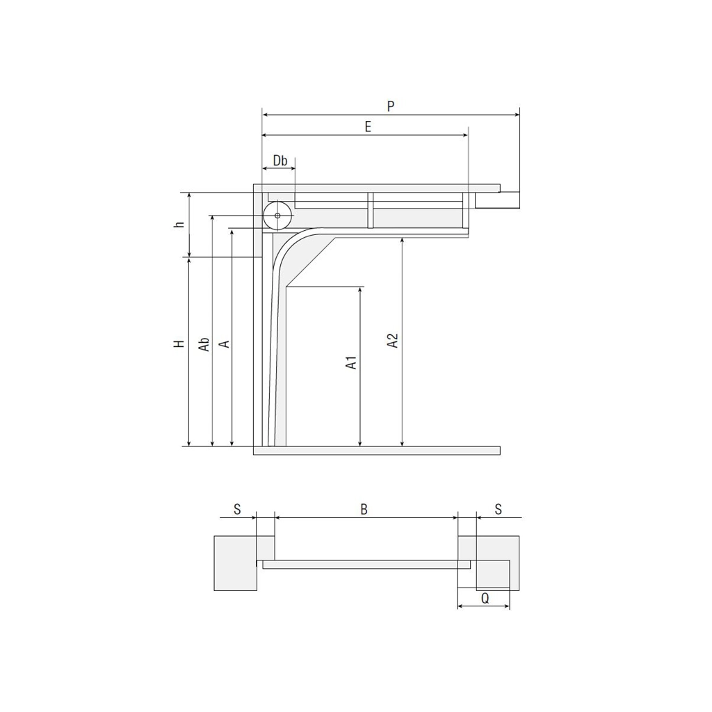
Типы подъема секционных ворот RSD 02 SLP
Низкий тип подъема

h - высота притолоки ≥ 210 мм
| Усл. обозначение, наименование параметра | Расчетная формула |
|---|---|
| H, мм Высота проема | H |
| h, мм Высота притолоки | h ≥ 210 |
| B, мм Ширина проема | B |
| A, мм Высота угловой стойки | H + 54 |
| Ab, мм Высота оси вала и барабана | A + 59 |
| A1, мм Высота вертикальной направляющей | А - 543 |
| A2, мм Высота горизонтальной направляющей | А - 106 |
| E, мм Длина горизонтальных направляющих | Н + 315 |
| S, мм Минимальное боковое пространство | 120 |
| P, мм Зона расположения потолочного привода | Н + 1 185 |
| n, мм Перекрытие проема в открытом положении | 245 (без привода); 40...60 (с потолочным приводом) |
Стандартный подъем

h(высота притолоки)≥ 320 мм
| Усл. обозначение, наименование параметра | Расчетная формула |
|---|---|
| H, мм Высота проема | H |
| h, мм Высота притолоки | h ≥ 320 мм |
| B, мм Ширина проема | B |
| A, мм Высота угловой стойки | H + 165 |
| Ab, мм Высота оси вала и барабана | A + 59 |
| A1, мм Высота вертикальной направляющей | A — 490 |
| A2, мм Высота горизонтальной направляющей | А - 53 |
| E, мм Длина горизонтальных направляющих | H + 250 |
| Db, мм Рабочая зона торсионного механизма | 100 |
| S, мм Минимальное боковое пространство | 120 |
| P, мм Зона расположения потолочного привода | Н + 1 060 |
Дизайн панелей полотна секционных ворот










